Glen C. Campbell, PA

Architects - GCCA

From start to finish, we get the job done!

Glen C.
Campbell, PA

Architects - GCCA

From start to finish,
we get the job done!

ALL THE SERVICES YOU NEED UNDER ONE ROOF

Architecture Design


We bring together a professional team with expertise acquired from large scale projects in highly competitive and demanding environments.

Interior Design


Our specialists provide a complete range of commercial and residential interior design services that encompass every detail.

Construction Admin.


We cut through the maze
of entities and agencies involved
in a project, ensuring that all requirements are handled seamlessly.

MEET THE TEAM

The Principals of GCCA are seasoned veterans in design, development, construction and project administration. Together, we provide a unique service that allows us to meet all of our client’s needs.

We'd love to hear from you! Please reach out at your convenience so we can discuss your project.

Hours

Monday - Friday: 9am - 5pm
Saturday - Sunday: Closed

Glen C. Campbell, PA, Architects
338 Atlantic Avenue #201 Brooklyn, NY 11201
718-246-0422
glen@glencampbell-pa.com


House Exterior

Glen C. Campbell, PA, Architects (GCCA) is a versatile firm founded in 1991, specializing in both small and large projects across various building types. With over forty years of professional expertise, GCCA excels in Residential, Commercial, and community-focused projects.GCCA stands out by offering a wide range of services under one roof, including furniture and product design, decoration, and furnishings. Their experienced Principals ensure attention to detail and smooth project execution, guiding clients through design options and preventing potential issues.

architecture

Welcome Place Building Plans

At GCCA, we start by understanding our clients' desires and then work closely with them to define the building's functions and required spaces. This collaborative process ensures a clear and well-understood plan for all involved.Our professional team, with experience from large-scale projects, applies this expertise to projects of all sizes. We use our architectural knowledge to deliver top-quality design and thinking, always motivated by our clients' satisfaction.


Architecture Services

Design/Build Services

GCCA offers comprehensive services from concept to completion, handling all project components. We collaborate with Coy Builders Enterprise for construction, ensuring quality and integrity. This partnership allows us to maintain quality, function, and beauty within the agreed cost.

Project Inception

The planning phase is the most crucial step in any project. It's when the project starts to take shape, the budget is solidified, and your vision begins to unfold.

Schematic Design

The first step in working with an architect is discussing your vision. At Glen C. Campbell PA, we explore your goals and needs to determine the functional objectives of the project. This sets the foundation for the design's graphic representation.

Design Development

As the architectural process progresses, our team will develop detailed designs for your project. During this phase, your vision begins to take shape as we create precise renderings of the building.

Interior Design

Glen C. Campbell PA offers comprehensive interior design services for both commercial and residential spaces, covering every detail from space planning and furniture selection to color coordination and accessories. We ensure that every project receives meticulous attention to transform your vision into a reality.

FOR COMMERCIAL

For commercial clients, Glen C. Campbell PA specializes in design services that enhance the image and appeal of your Brooklyn business. Our experienced team can infuse fresh originality into an existing interior or completely transform your space, improving brand image, productivity, and profits.

LIVING COLOR

Effective design enhances productivity by creating a work-friendly environment tailored to your industry. We customize color schemes, seating arrangements, and decoration styles to best represent your company. Glen C. Campbell PA collaborates closely with you to develop a décor theme that meets your needs and elevates your space.


Interior Design Services

Business

Glen C. Campbell PA specializes in stylish and practical space planning for businesses. Our team provides detailed scale representations for new constructions, renovations, or redesigns of commercial spaces, including site plans, finishes, elevations, ceiling plans, and lighting designs. We customize our services to fit your requirements and budget, and offer scaled 3D renderings to visualize the results before the project begins.


Residential

Glen C. Campbell PA offers a full range of residential interior design services, from space planning and furniture selection to color coordination and accessories. Whether you want to update a single room or completely transform your home, our designers provide the expertise and inspiration to make your living space exceptional. Start by discussing your ideas in a consultation, where we’ll create a detailed, personalized design plan that reflects your lifestyle and enhances your well-being.


Furniture Design

At GCCA, we consider every detail in finishing a space, from selecting furniture to providing custom designs. We offer a wide range of materials and options to ensure the space is functional and aligns with the design theme and client’s preferences. Our furniture design services, used in both large commercial projects and small residential ones, bring a sophisticated understanding of design to suit any style or taste.

Construction Administration

Architects meetup

Construction Administration Services

Construction Documents

Once the schematic designs are finalized and approved, Glen C. Campbell, PA moves to the Design Development (DD) phase, where the design is detailed and Building Systems and Materials are chosen. After client approval, we prepare the Construction Documents (CD), also known as Working Drawings, which are essential for building construction. A significant amount of effort goes into creating these documents to minimize site changes and additional costs, ensuring a smooth Construction Administration process.


Project Management

A construction project, regardless of size, is a significant undertaking with many details to manage. At Glen C. Campbell PA, we assign a principal from our firm to oversee the project, ensuring attentive management from design initiation to project completion. This principal handles all aspects of design, communication, bidding, negotiation, and construction oversight, staying involved throughout to protect the project's integrity and our clients' interests.

Project Profiles

THE WILLIAMS RESIDENCE
The Williams Family
St. Johns Place, Brooklyn, New York

What started as a renovation of the Third Floor extended to the entire building, which has recently been added to New York City's Historic Landmark record. The Campbell-designed front entry door and canopy were installed in time to be grandfathered into the Landmarks regime, preserving the building's aesthetic and functional elements. The project, which includes three floors plus a cellar (about 3,100 square feet), involved a complete redesign and installation of Mechanical and Electrical Systems. The renovation also featured new kitchens, baths, custom wall units, furniture, fireplace mantles, fixtures, drapes, and art displays, with a focus on seamlessly integrating new and old elements.

Photographs by Abe Jasinowski, Vanessa Blake
Construction by Coy Builders Enterprise.

PATRICK D. WALKER MEMORIAL FAMILY LIFE & COMMUNITY CENTER
East 222 Street, Bronx, New York

Designed for St. Luke’s Episcopal Church, this 32,000 square foot contemporary multipurpose building blends seamlessly into its residential community. It features a Great Hall for athletic events and dining, a Day Care Center with a rooftop play area, a Library, and Administrative Offices. The design includes comprehensive exterior and interior elements, along with related furniture and fixtures, with a current construction estimate of around $9.5 million. Construction is scheduled to begin soon.

Rendering by Luis Blanc

MOUNT OLIVET SEVENTH-DAY ADVENTIST CHURCH
Chelton Avenue, Camden New Jersey

This 10,400 square foot renovation modernized the Sanctuary and expanded its capacity while reorganizing associated administrative functions. It included a new Audio/Visual control room, expanded Community Services, and Administrative Offices, with a redesigned Altar reflecting Seventh-Day Adventists theology through symbolic elements like the lit cross, golden crown, and Ten Commandments. The project also involved upgrading Mechanical and Electrical Systems, furniture design, and selection of materials and colors, achieving functional architecture that is both cost-effective and aesthetically pleasing.

Rendering by Simple Twig Architecture, Nicholas Buccalo

CHURCH BUILDING
Queens, New York

This 13,000 square foot expansion includes a fully extended Sanctuary, additional Administrative Offices, classrooms for religious study, and space for Community Outreach programs. The project involved a complete redesign of the facility, including landscaping, expanded parking, and interior design with furniture selection. These enhancements significantly improve the chapel's aesthetic appeal and benefit the neighborhood. The design was completed by Glen C. Campbell, PA but was not taken to construction.

Perspective by Louis Blanc

THE SOHO
WELCOME CENTER
Saving Orphans through Healthcare and Outreach (SOHO)
Mhlosheni,
Swaziland, Africa

In response to a request from Cynthia J. Prime, CEO and co-founder of SOHO, GCCA's design team quickly brainstormed and developed a concept for a 6,000 square foot single-level building. The design features a common community entry space, a residential quarter for a caretaker, and a large multipurpose room for various functions. The building's major functions are defined by masonry walls covered with a metal roof.

Rendering by Simple Twig Architecture, Nicholas Buccalo

SINGLE FAMILY RESIDENCE
Lake Placid, Florida

Located north of Ft. Lauderdale in Highland County, this residence was designed for a five to six-acre lot previously part of a citrus grove. The home features three bedrooms for family and guests, and a master suite for permanent residents, with two distinct wings to separate these areas. The design includes a classical layout with a central corridor flanked by the Living Room, Dining Room, Family Room, and Kitchen, all receiving light and ventilation from the sides. A Rotunda connects the Living and Bedroom blocks, with a slanted pitched roof bringing northeast light into the social areas. The building encompasses approximately 3,800 square feet, with meticulous attention to detail both inside and out.

More Projects

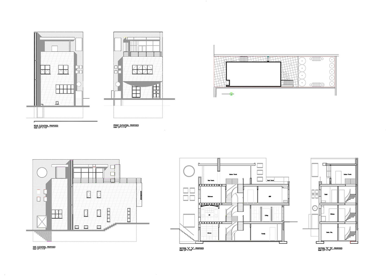
THE ST. HILL RESIDENCE
Marie St. Hill (Pending Construction)
Emerson Avenue, Bronx, New York

This three-floor, 4,000 square foot residential project was a pivotal moment in our professional and philosophical development. The client requested a single-family home for herself and her two children, necessitating the demolition of an old building due to zoning regulations. The challenge was to design a modern-contemporary home while addressing the constraint of the neighboring house abutting the side property line of the St. Hill building.


T.J.B. APARTMENT
T.J.B. Realty (Design Development)
Bronx, New York

The T.J.B. Corporation commissioned Campbell to design a residential apartment building in a working-class section of the Bronx, NY. The project aimed to maximize zoning potential with one-family and two-family units. After a detailed zoning analysis, GCCA leveraged New York City's Quality Housing regime to create over 25,000 square feet of high-quality housing, while respecting the neighborhood's scale and meeting the client's requirements.


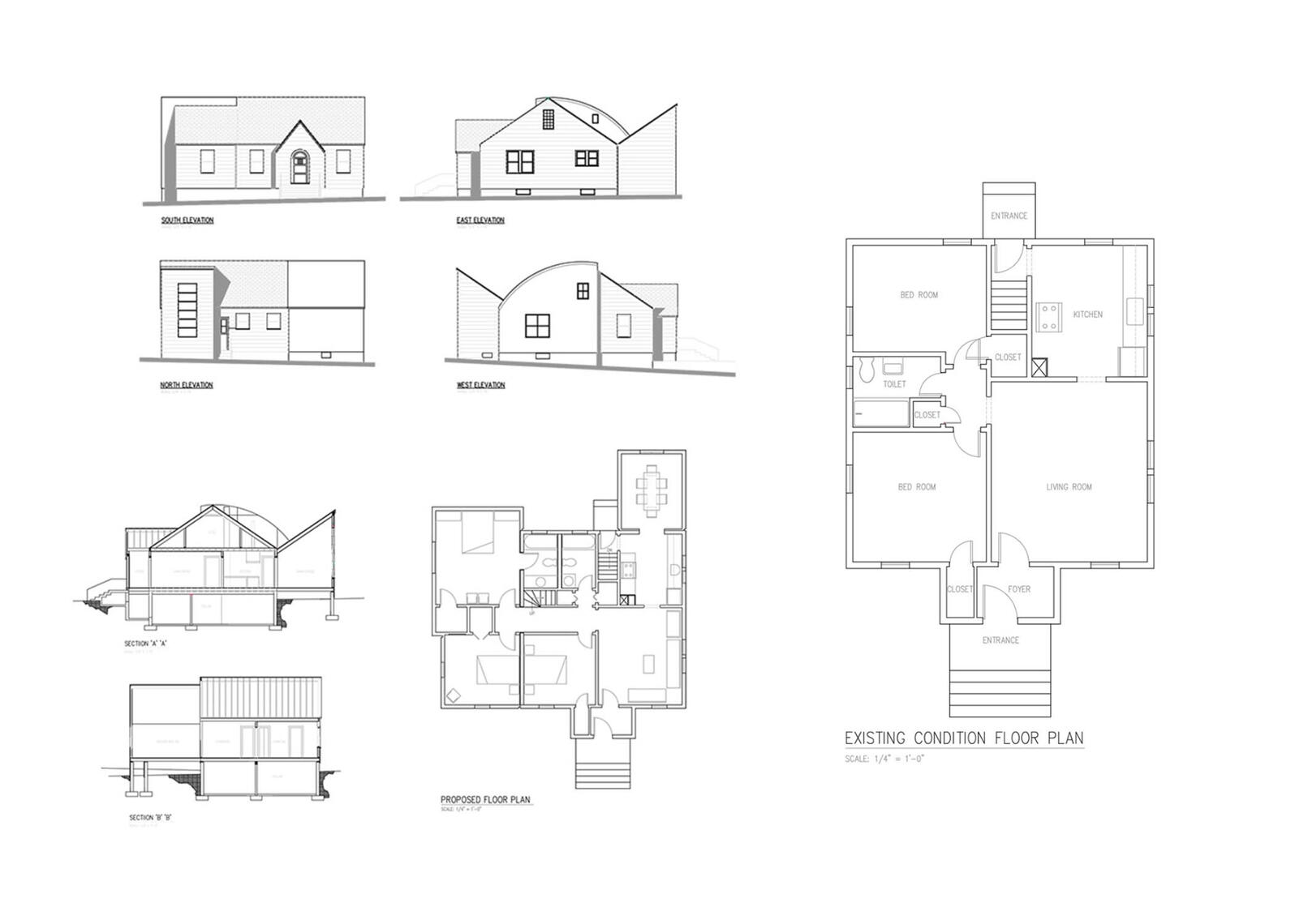
**THE CASTRO RESIDENCE **
The Castro Family
Orchard Street, Spring Valley, New York

The objective was to expand a small two-bedroom Cape Cod-style house into a larger one-family home. GCCA blended traditional architecture with contemporary design, adding bedrooms, baths, a dining room, and expanding the kitchen to total about 1,800 square feet. The project was both designed and construction-managed by Campbell.

meet our team

Glen C. Campbell

Glen's passion for architecture began early while studying classical masters in Trinidad, sparking his desire to create architectural art. He graduated from The City College of New York with a degree in Architecture and gained experience with firms like Copeland Novak and Israel, Tucci Segrete & Rosen, and Fitzpatrick Design Group. His work included high-profile projects for Tiffany, Saks Fifth Avenue, and others, honing skills that now drive client satisfaction. Glen has designed various structures, from churches to residential spaces, and has taught as an Adjunct Professor at New York City Technical College. He is registered in New York, New Jersey, Florida, and Maryland, holds National Council Registration, and is a member of the American Society of Composers, Authors and Publishers.

Foot print black and white

Human Seal
As the philosophical basis of his approach to Architectural Design,
Frank Gehry went back so far that he decided to select the fish.  Following Gehry’s lead, I however decided to begin at humans.
“For Humans by Humans”
Our journey therefore continues and we thank him for his enormous contribution, stylistically and technologically. Everything is now possible.


Winston L. Williams

Winston, originally from Jamaica, began his architectural career at Le Gendre-Johnson Architects in the United States, where he also earned his degree in Architecture from The City College, New York. He spent four years with Environetics Architects before joining John Burgee Architects, where he worked alongside Philip Johnson for eight years. Winston became known for meticulously laying out entire buildings on sketch paper, detailing every aspect before drafting Construction Documents.His expertise in Multi-Story Curtain Wall Design was evident in significant projects like the IBM Tower and One Ninety One Peachtree Tower, each exceeding fifty stories. After his tenure at John Burgee, he continued his career with Kohn Pedersen Fox Associates and later at Lawless and Mangione, specializing in restoration and repair across various building types.Winston's contract work for GCCA showcased his strong technical skills and refined design sense. This experience led to his role as a principal at GCCA, where he utilizes his extensive background to benefit clients and elevate the firm's design capabilities.


Orville Hayles

Orville, a graduate of The School of Architecture and Environmental Studies at The City College, New York, began his career at Harry Soled, Architects. There, he was involved in Design Planning, Zoning Analysis, and Code Investigation, with a focus on residential buildings. He became an expert in legal documentation for buildings, ensuring that every project starts with a clear understanding of legal possibilities. After his time at Soled Architects, Orville joined Bricolage Designs, where he worked extensively on Condominium and Co-operative Development.At GCCA, Orville has made significant contributions from initial discussions to shaping design philosophy and executing plans. His expertise and involvement are key to the firm's success, and he is registered in New York with National Certification.


Eslpeth Knox

Elspeth Knox, with extensive international travel and a strong background in fine art and diverse cultures, brings innovative ideas to every project. She began her career at Sotheby’s in the Decorative Arts department before working at Tucci Segrete & Rosen, Macy’s Corporation, Brennan Beer Gorman Monk, and Rosenblum Harb Architects, handling commercial spaces for high-profile clients like Macy’s and Saks Fifth Avenue.Elspeth collaborated with Glen Campbell at Fitzpatrick Design Group, serving as the Senior Colorist and Materials Designer on projects for clients such as Bonwit Teller and Bloomingdale’s. In 2000, she founded M. Elspeth Knox Interior Design and worked with GCCA as the chief Color and Material Expert. Her notable projects include IDC on the Bund in Shanghai and Lotte Department Store in Beijing, as well as various residential designs. Elspeth is a Parsons School of Design and NYU Fine Arts graduate, and she is skilled in Color and Materials, Graphics, Furniture, and Jewelry Design.

ARTICLES

Marie’s Home

By Glen Campbell, Principal
Photography by David Francis

According to New York City Building Code and Zoning Resolution, “Building Laws”, any residential building with three or more Units is considered a Multiple-Dwelling Residential Facility. As a result, when this client called us upon the recommendation of a colleague and ask us to legalize the building for three families, we first had to determine if the structure could meet the criteria.  The fact that the building was located in Brooklyn in an R-5 Zone presented a challenge in satisfying Floor Area, Lot Coverage and Off-Street Parking, to name a few of the municipal considerations.  Of course, like we always do, a Preliminary Zoning Analysis was performed so that we could decide if the project is doable and if we should take-on the job.  The numbers added-up so we reached out to the client and scheduled a meeting after requesting pertinent information such as a Survey and a list of functional requirements AKA the Program.With most projects of this type, we had to know if the budget was compatible with the desired work in order to structure design functions and provide guidance to the client about possible construction cost. The work required minor adjustments to the two upper apartments and the conversion of an enclosed Garage and Recreation Room into habitable space.  As you may or may not know, habitable space as defined by the building code must have a certain percentage of light and ventilation, which affects sizes of windows, circulation and could impact points of access into the building.  These are some of the elements that usually affect construction cost so we used our knowledge of the systems to satisfy the municipal needs while keeping the client’s considerations in mind.

Click on images to enlarge

As architects with a certain experience and exposure, we did not want to just provide rooms that meet the building code.  Instead we wanted to fulfill the building needs but with an end-result which would make the client feel satisfied and pleased at the conclusion of the financial investment.  Like most of the other residential buildings on the block that are attached or semi-attached, the site had a slope so the buildings were designed with a split-level arrangement.  Living and Dining Room with Kitchen on one level and Bedrooms a stair up.  The key to the challenge for us was the conversion of a Garage that was enclosed on the First Floor at Grade into Living Space. Kitchen and Dining space was needed along with a Handicap-Accessible Bathroom as is required by the building code because of the Three-Family conversion.After establishing the basic size limitations of the space, to avoid the cost of custom fixtures we spent extra time with the client at stores such as Home Depot, working on the selection of Kitchen Range, Refrigerator, Counter Top and standard Kitchen Cabinets.  Even though we did not want to go beyond the budget that was presented we injected a few small accents such as the selection of Tiles for the Kitchen Back-Splash and the Bathroom in order to give the space the aesthetic lift that was required.  Sometimes spending a few dollars more on a project could reap benefits to the project that increases investment and value so we encouraged that effort of this client.   Assistance on the selection of Paint Colors with the personal touch of the client taking care of decoration finished-off the space to her satisfaction.  Architecture is much more than preparing Floor Plans for the approval of the Department of Buildings and for Construction Permits.  This exercise is an example of fundamental architectural thinking and collaboration with a client who understood the value of the exercise.  We believe that the money was well-spent even though it was a sacrifice.  From our point of view the value of the property has been increased significantly because of the multiple-family status and the work that was performed.  Client’s satisfaction is what matters to us.


We'd love to hear from you! Please reach out at your convenience so we can discuss your project.

Hours


Monday - Friday: 9am - 5pm
Saturday - Sunday: Closed

Glen C. Campbell, PA, Architects
338 Atlantic Avenue #201 Brooklyn, NY 11201
718-246-0422
glen@glencampbell-pa.com